环评云助手
首页
监测云
公示平台
社区论坛
环评云商城
尚云环境
直播
云学苑
我要上传
法律法规规范
国家或地方标准
书籍文献资料
报告资料
其他类型资料
搜索
客户端
APP
扫一扫下载APP
手机/电脑端下载
登录
|
注册
历史搜索
推荐热词
我要上传
环评云助手APP
扫码下载
环评云助手公众号
扫码关注
分类管理名录
排污许可名录
固废名录
产业代码
数据站点
术语查询
热点问答
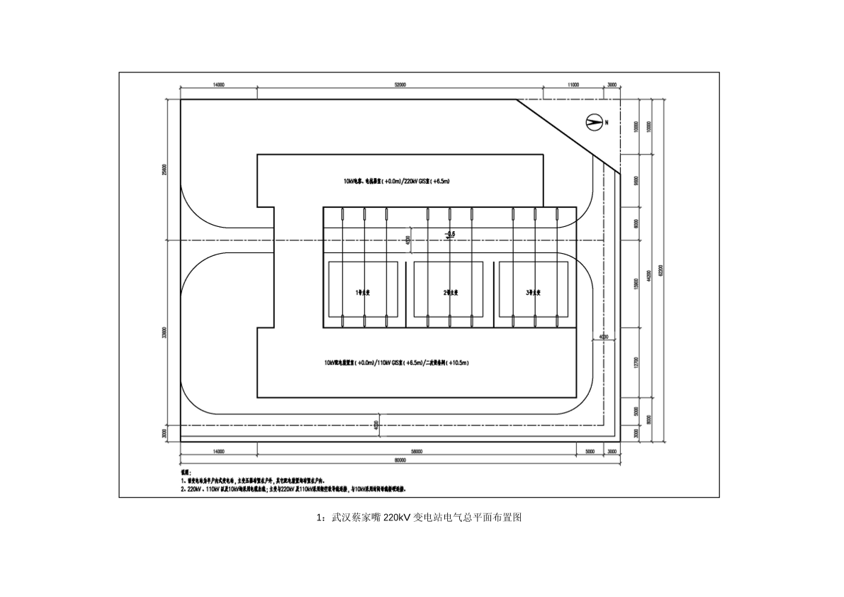
武汉武昌蔡家嘴升压220kV输变电工程4881
公开
奔跑的小仓鼠
+ 关注
上传日期:2023-05-01
0
93
0
资料类型
报告资料
适用范围
/
文件日期
2014 - 2018
文件分类
环境相关报告-环评文库
文件预览
查看原文
版权说明:本文档由用户提供并上传,收益归属内容提供方,若内容存在侵权,请进行
举报
武汉武昌蔡家嘴升压220kV输变电工程4881.pdf
【690.4 KB】
支付100云贝
预览
相关推荐
1、武汉化工220kV输变电工程3909
【匹配度0.52】
2、七家庄220kV输变电工程9274
【匹配度0.48】
3、武汉220kV庙山二输变电工程5381
【匹配度0.48】
4、武汉江夏220kV杨泗矶输变电工程3408
【匹配度0.43】
5、磁县220kv输变电工程
【匹配度0.39】
猜你喜欢
1、环办环评〔2020〕33号 关于印发《建设项目环境影响报告表》内容、格式及编制技术指南的通知和常见问题解答
2、部令第16号 建设项目环境影响评价分类管理名录(2021年版)
3、GB18597-2001 危险废物贮存污染控制标准
4、GB14554-93 恶臭污染物排放标准
5、GB15618-2018 土壤环境质量 农用地土壤污染风险管控标准 (试行)
评论
收藏
微信扫一扫
分享
评论
共
0
条评论
请先
登录
后发表评论
0
/150
发表评论
按热度排序
按时间排序
设为首页
| 版权©
尚云环境
|
京公网安备 11011402011579号
|
京ICP备17049511号-2
|
增值电信业务经营许可证:京B2-20200914
0/150