环评云助手
首页
监测云
公示平台
环评论坛
云商城
直播
云学苑
上传
法律法规规范
国家或地方标准
书籍文献资料
报告资料
其他类型资料
搜索
客户端
扫一扫下载APP
手机/电脑端下载
登录
|
注册
历史搜索
推荐热词
我要上传
环评云助手APP
扫码下载
环评云助手公众号
扫码关注
分类管理名录
排污许可名录
固废名录
产业代码
数据站点
术语查询
热点问答
AI审核
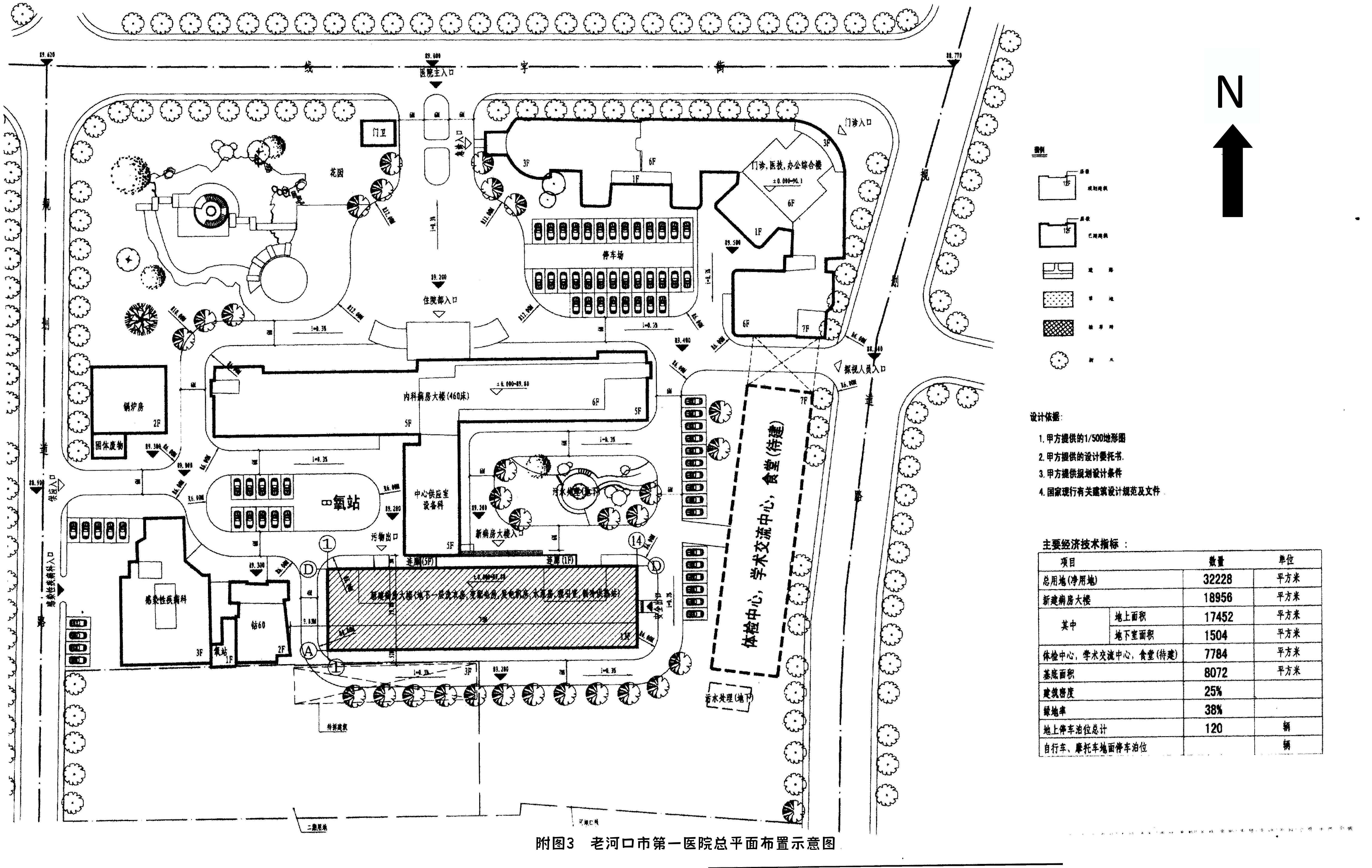
老河口市第一医院新增直线加速器等核技术应用项目7770
公开
奔跑的小仓鼠
+ 关注
上传日期:2023-05-01
0
118
0
资料类型
报告资料
适用范围
/
文件日期
2014 - 2018
文件分类
环境相关报告-环评文库
文件预览
查看原文
版权说明:本文档由用户提供并上传,收益归属内容提供方,若内容存在侵权,请进行
举报
老河口市第一医院新增直线加速器等核技术应用项目7770.pdf
【7.9 MB】
支付100云贝
预览
相关推荐
1、许昌市人民医院新建直线加速器等核技术应用项目
【匹配度0.63】
2、新增直线加速器核技术应用项目
【匹配度0.52】
3、中国人民解放军第一六一医院新增电子直线加速器核技术应用项目4626
【匹配度0.52】
4、钴60及直线加速器核技术应用项目
【匹配度0.44】
5、放射科新增医用直线加速器应用项目2272
【匹配度0.41】
猜你喜欢
1、GB22337-2008 社会生活环境噪声排放标准
2、GB18918-2002 城镇污水处理厂污染物排放标准及修改单
3、HJ819-2017 排污单位自行监测技术指南总则
4、HJ535-2009 水质 氨氮的测定 纳氏试剂分光光度法
5、GB36600-2018 土壤环境质量 建设用地土壤污染风险管控标准(试行)
评论
收藏
微信扫一扫
分享
评论
共
0
条评论
请先
登录
后发表评论
0
/150
发表评论
按热度排序
按时间排序
设为首页
| 版权©
尚云环境
|
京公网安备 11011402011579号
|
京ICP备17049511号-2
|
增值电信业务经营许可证:京B2-20200914
0/150