环评云助手
首页
监测云
公示平台
环评论坛
云商城
直播
云学苑
上传
法律法规规范
国家或地方标准
书籍文献资料
报告资料
其他类型资料
搜索
客户端
扫一扫下载APP
手机/电脑端下载
登录
|
注册
历史搜索
推荐热词
我要上传
环评云助手APP
扫码下载
环评云助手公众号
扫码关注
分类管理名录
排污许可名录
固废名录
产业代码
数据站点
术语查询
热点问答
AI审核
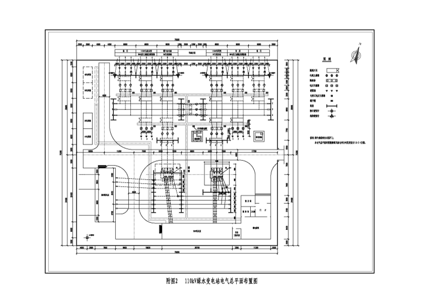
来凤绿水110kV输变电工程1240
公开
奔跑的小仓鼠
+ 关注
上传日期:2023-05-01
0
5
0
资料类型
报告资料
适用范围
/
文件日期
2014 - 2018
文件分类
环境相关报告-环评文库
文件预览
查看原文
版权说明:本文档由用户提供并上传,收益归属内容提供方,若内容存在侵权,请进行
举报
来凤绿水110kV输变电工程1240.pdf
【452.0 KB】
支付100云贝
预览
相关推荐
1、来凤黄茅坪110kV输变电工程1240
【匹配度0.84】
2、香山110kV输变电工程1751
【匹配度0.61】
3、新区110kV输变电工程7568
【匹配度0.56】
4、遵义白杨110kv输变电工程
【匹配度0.50】
5、国体110kv输变电工程
【匹配度0.50】
猜你喜欢
1、GB37822-2019 挥发性有机物无组织排放控制标准
2、DB12/524-2020 工业企业挥发性有机物排放控制标准
3、GB16297-1996 大气污染物综合排放标准
4、GB3096-2008 声环境质量标准
5、HJ828-2017 水质 化学需氧量的测定 重铬酸盐法
评论
收藏
微信扫一扫
分享
评论
共
0
条评论
请先
登录
后发表评论
0
/150
发表评论
按热度排序
按时间排序
设为首页
| 版权©
尚云环境
|
京公网安备 11011402011579号
|
京ICP备17049511号-2
|
增值电信业务经营许可证:京B2-20200914
0/150